Возможность купить отличную квартиру недалеко от Старой Риги в новом проекте с 49 000 EUR
Фильтр
Все категории
Выберите категорию
416 объявлений - смотреть все объявления
Латвия
Искать по выбранной стране
Искать по выбранной стране
  • Рига
  • Юрмала
  • Рижский район
  • Айзкраукле и район
  • Алуксне и район
  • Балви и район
  • Бауска и район
  • Валка и район
  • Валмиера и район
  • Варакляны и район
  • Вентспилс и район
  • Гробиня и район
  • Гулбене и район
  • Даугавпилс и район
  • Добеле и район
  • Екабпилс и район
  • Елгава и район
  • Краслава и район
  • Кулдига и район
  • Лиепая
  • Ливаны и район
  • Лимбажи и район
  • Лудза и район
  • Мадона и район
  • Огре и район
  • Прейли и район
  • Резекне и район
  • Салдус и район
  • Смилтене и район
  • Талси и район
  • Тукумс и район
  • Цесис и район
  • За границей Латвии
  • Другой
Рижский район
Искать по выбранному региону
Искать по выбранному региону
  • Балдоне
  • Баложи
  • Вангажи
  • Олайне
  • Саласпилс
  • Саулкрасты
  • Cигулда
  • Адажский округ
  • Аллажская вол.
  • Бабитская вол.
  • Балдонская с. т.
  • Гаркалненский округ
  • Даугмалская вол.
  • Инчукалнский округ
  • Кекавская вол.
  • Кримулдская вол.
  • Малпилская вол.
  • Марупская вол.
  • Моренская вол.
  • Олайненская вол.
  • Ропажский округ
  • Саласпилсская с. т.
  • Салская вол.
  • Саулкрастская с. т.
  • Сейский округ
  • Сигулдская вол.
  • Стопиньский округ
  • Царникавский округ

Возможность купить отличную квартиру недалеко от Старой Риги в новом проекте с

№145726
Создано: 8 апреля
Адрес: Latgales iela 146A, Рижский район
url: https://starlex.lv/lv/estate/21895-apartment-latgales-iela-146a 
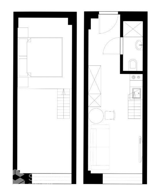
Кол-во комнат:
Площадь: 28 м2
Этаж: 3 Stāvs
Этажность дома:
Возможность купить отличную квартиру недалеко от Старой Риги в новом проекте с новым ремонтом, с утепленным фасадом и закрытой территорией. Квартира полностью меблирована и оборудована всем необходимым для проживания. Здание расположено напротив трамвайной остановки с благоустроенным сквером и детской площадкой.
Все квартиры имеют продуманную до сантиметра планировку. Установлен новый лифт. Квартиры с дизайнерским отборным ремонтом и частично меблированы. В некоторых квартирах есть встроенная кухня и шкафы, а также шторы и светильники. В квартирах высокие потолки от 3 до 4,3 м. По желанию клиента мы можем полностью обставить квартиру. В нашем доме мы предлагаем комплексную услугу по уборке квартир, также в здании есть собственная прачечная.
Предлагаем возможность купить квартиру с арендатором, с существующим денежным потоком. Дополнительно предлагаем к покупке парковочное место на закрытой территории, во дворе.
Звоните для более подробной информации или приходите на осмотр!






№145726
Создано: 8 апреля
49 000 EUR
Message Контакты